Artillerivej
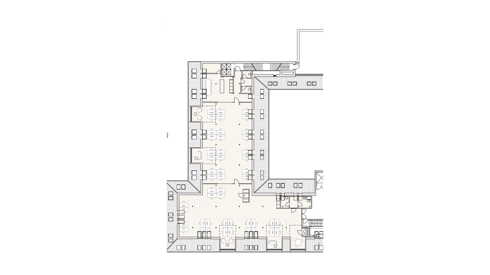
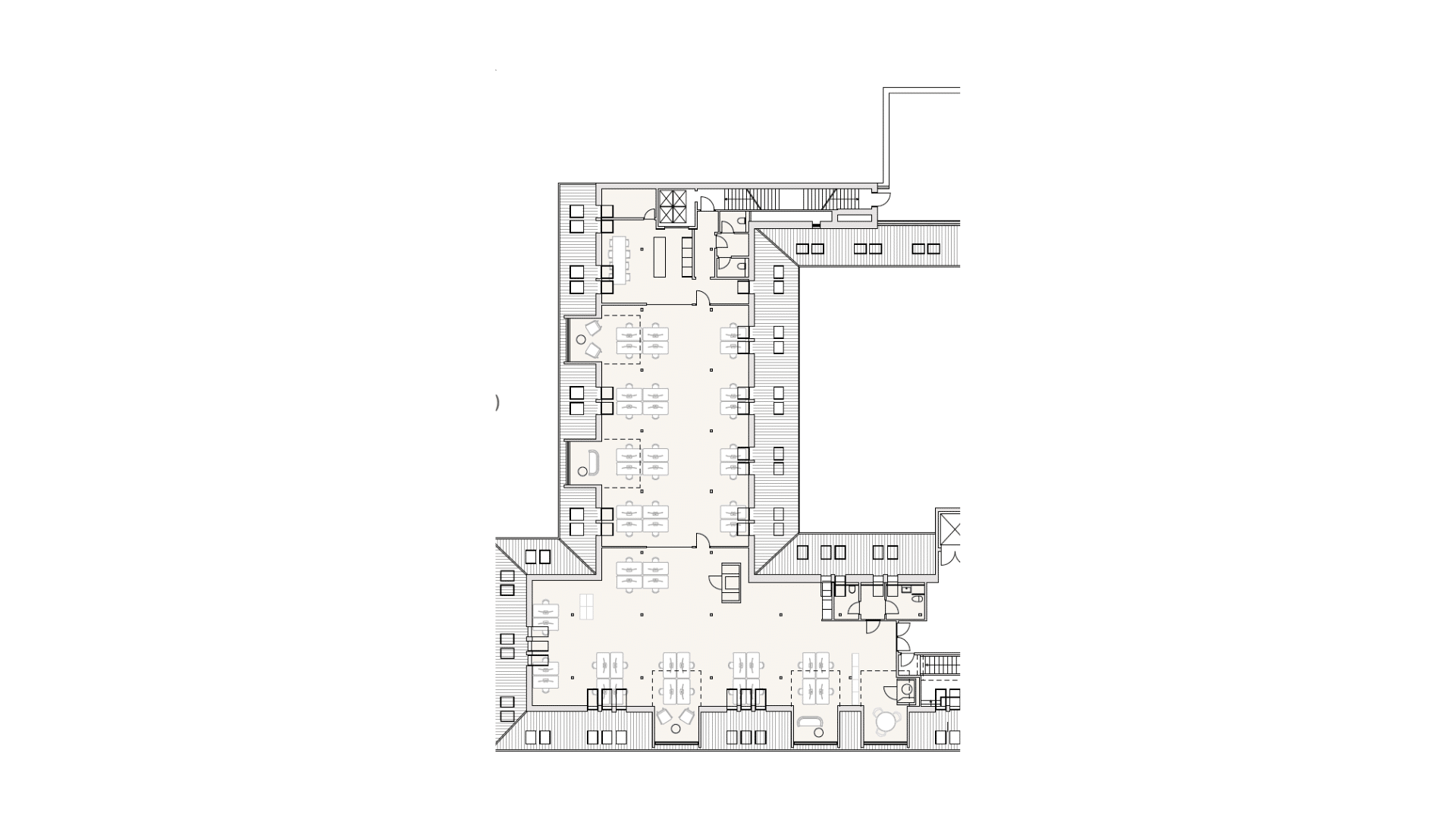
Kontorlejemål på 557 m² med plads til op til 48 personer
Om lejemålet
På Artillerivej 86 flytter din virksomhed ind i et lejemål kendetegnet ved en rå og industriel stil, der leder tankerne tilbage til den oprindelige trikotage fabrik.
På 5. salen finder finder I et stort og lyst lejemål på 557 m2 og med plads til 48 arbejdsstationer. Lejemålet har hvide vægge og lofter, lyst trægulv samt store New Yorker vinduer, der sikrer lejemålet et godt lysindfald.
Derudover, findes der eget tekøkken, mødefaciliteter og toiletter på dette lejemål, og man har ligeledes ved dette lejemål adgang til en stor, attraktiv tagterrasse med udsigt over hele Amager.
Lyder det som noget for dig? Vi glæder og til at vise lokalerne frem.
| Leje pr. md. (ex drift og forbrug) | 71.946 kr. |
| Aconto forbrug | 5.477 kr. |
| Aconto driftsudgifter | 18.428 kr. |
| Servicebidrag | 0 kr. |
| Leje pr. md. inkl. drift og forbrug | 95.851 kr. |
| Leje pr. år (ex drift og forbrug) | 863.350 kr. |
| Aconto forbrug | 65.726 kr. |
| Aconto driftsudgifter | 221.130 kr. |
| Servicebidrag | 0 kr. |
| Leje pr. år inkl. drift og forbrug | 1.150.206 kr. |
Der tages forbehold for prisændringer.
| Anvendelse | Kontor |
| Betaling | Kvartalsvis forud |
| Depositum | 6 måneders husleje |
| Lejeregulering | Nettoprisindeks dog min. 3% |
| Uopsigelighed | Efter nærmere aftale |
| Opsigelsesvarsel | 6 måneder |
| Overtagelsestidspunkt | Nu |
unikke fordele og services:
Driften af kontorhuset er inkluderet i pakken, så I kan koncentrere jer om forretningen. Vi faciliterer også ekstra services til eget lejemål.
Langt væk hjemmefra? Book mødelokaler på vores andre lokationer i Aarhus, Odense og København.
I vores brasserie byder vi hver dag på sund, økologisk og frisklavet mad i høj kvalitet. Der er også mulighed for take away.
Vi tilbyder løbende nye services og tilbud, der gør det nemmere for jeres medarbejdere at få hverdagen til at hænge sammen. Jeres virksomhed får desuden adgang til særligt attraktive pensions- og forsikringspakker og sundhedsanalyse fra PFA.
Vækst jeres forretning uden at skulle flytte. Mange af vores kontorhuse er så fleksible, at jeres virksomhed kan skrue op og ned for kvadratmeterne efter behov.
Få hjælp til indflytning og indretning af jeres eget kontor. Og spar penge på nye møbler med vores attraktive møbelpakke. Vælg mellem mange populære brands.
Hvis jeres virksomhed får behov for at etablere nye afdelinger, kan vi tilbyde lejemål i The Union kontorhuse i Aarhus, Odense og København.
Fakta
| 86, 1. sal | 1601 m² | 90 pers. | Udlejet |
| 86, 2. sal | 906 m² | 50 pers. | Udlejet |
| 86, 2. sal | 695 m² | 40 pers. | Udlejet |
| 86, 3. sal | 935 m² | 50 pers. | Udlejet |
| 86, 3. sal | 695 m² | 40 pers. | Udlejet |
| 86, 4. sal | 1583 m² | 87 pers. | Udlejet |
| 86, 5. sal | 557 m² | 48 pers. | Ledig |
| 86, 5. sal | 557 m² | 30 pers. | Udlejet |
| 86, Stuen | 833 m² | 50 pers. | Udlejet |
| 86, Stuen | 603 m² | 50 pers. | Ledig |
Vil du høre mere? Så skriv til kontakt@theunion.dk eller ring på 70605384
Adgang til fælles mødecenter med indbydende og funktionelle mødelokaler der alle er udstyret med high speed Wi-Fi og AV udstyr.
I vores brasserie byder vi hver dag på sund og frisklavet mad i en høj kvalitet.
Med lounge og touch down spaces opnås en bredere pallette af arbejdsrammer, som understøtter et mere dynamisk arbejdsliv og forbedrer arealeffektiviteten.
Cykelparkering i kælder.
Tag en pause fra dagens opgaver.
Flere fordele med
All Inclusive
Fuld fleksibilitet
• Flyt ind på mindre end en måned
• Fraflyt med kun 6 måneders varsel
• Skru op og ned for kvadratmeterne og servicen efter behov
Alt inkluderet i lejen
• Komplet møbleret lejemål
• Attraktive fællesfaciliteter og mødelokaler
• High speed internet (kablet og WiFi)
• El, vand, varme og drift
• Rengøring og vinduespolering
Markedets mest transparente aftale
• Simpel og letlæselig kontrakt på få sider
• Alt inkluderet i lejen – ingen uforudsete udgifter
• Fraflytningsforpligtelsen er fastlåst og kendt på forhånd
En lejekontrakt
som ingen andre
Vi vil gerne introducere dig for en helt ny måde at lave lejekontrakter på. En lejekontrakt som ikke kræver, at du sidder klar med en strategisk business plan for de næste 5 år. Du kan flytte ind på mindre end en måned, skalere op og ned efter behov samt få del i et væld af lækre faciliteter og ekstra services. Samtidig kan du fraflytte med kort varsel – alle udgifter er inkluderet og fraflytningsforpligtigelsen er fastlåst og kendt på forhånd..
Alle de kontrakttunge steps, som normalt spænder ben for din virksomheds fleksibilitet og vækst er fjernet til fordel for en mere simpel løsning, der dækker din virksomheds behov. Fra færdigindrettet lejemål til sund mad i kantinen. Der er tænkt på det hele. Det er derfor vi kalder lejekontrakten ’All Inclusive’.
Attraktiv beliggenhed
En sund forretning er også forbundet med effektiv arbejdstid. The Union Artillerivej 86 har en central beliggenhed med kun få minutters gang fra Islands Brygge Metro og tæt på Havnebadet. Endvidere ligger gangbroen til Fisketorvet indenfor kort gåafstand.
Det tidligere industri- og forsvarsområde har de seneste år udviklet sig til et spændende område med stemningsfulde ældre ejendomme og moderne nybyggeri.
Fordele og services
Når din virksomhed flytter ind i et The Union kontorhus, får I adgang til værdiskabende fællesfaciliteter og attraktive medarbejdergoder. Her får I ikke bare adgang til fysiske rammer, hvor komfort hænger sammen med at være omkostningsbevist. I bliver også en del af et fuldt serviceret fællesskab, der giver både dine medarbejdere og gæster en hverdag med høj service og store smil.
Book din fremvisning nu
