Cortex Business Park
Kontorlejemål på 396 m² med plads til op til 26 personer
Om lejemålet
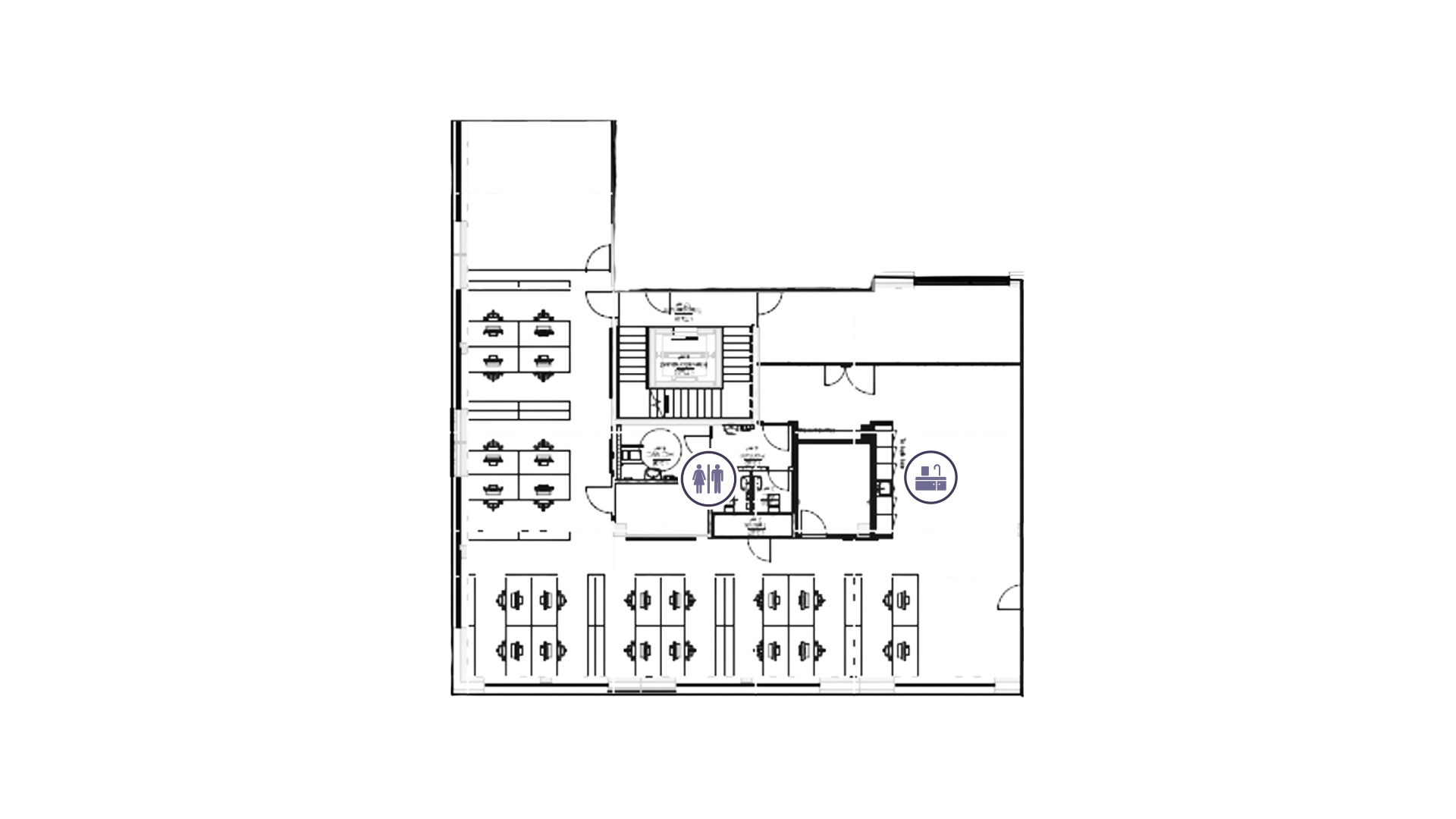
Fra et indbydende ankomstområde med fælles digital reception kan du tage trappen eller elevatoren op på kontorhusets 2. sal. Her finder du et lyst kontor med store vinduer, akustiklofter og lyse trægulve der tilsammen skaber god akustik og godt indeklima. Din virksomhed kan på dette lejemål tilgå eget tekøkken, toiletfacilliter og ekstra lokale til møder eller aflukket kontor.
Skal du have plads til bilen eller cyklen, er der gode parkeringsmuligheder foran ejendommen.
Lyder det som noget for dig? Vi glæder os til at viser lokalerne frem.
| Leje pr. md. (ex drift og forbrug) | 31.808 kr. |
| Aconto forbrug | 1.735 kr. |
| Aconto driftsudgifter | 11.827 kr. |
| Servicebidrag | 0 kr. |
| Leje pr. md. inkl. drift og forbrug | 45.370 kr. |
| Leje pr. år (ex drift og forbrug) | 381.700 kr. |
| Aconto forbrug | 20.820 kr. |
| Aconto driftsudgifter | 141.923 kr. |
| Servicebidrag | 0 kr. |
| Leje pr. år inkl. drift og forbrug | 544.443 kr. |
Der tages forbehold for prisændringer.
| Anvendelse | Kontor |
| Betaling | Kvartalsvis forud |
| Depositum | 6 måneders husleje |
| Lejeregulering | Nettoprisindeks dog min. 2% |
| Uopsigelighed | Efter nærmere aftale |
| Opsigelsesvarsel | 6 måneder |
| Overtagelsestidspunkt | Nu |
unikke fordele og services:
Spar værdifuld til på koordinering af alt fra rengøring, kantineordning til planteservice. Driften af kontorhuset er inkluderet i pakken. Vi tilbyder også ekstra services til eget lejemål.
I vores brasserie byder vi hver dag på sund og frisklavet mad i en høj kvalitet.
Adgang til kaffeautomat i fællesområde
Skal det være nemt? Så bestil take away til aftensmaden fra vores lækre Brasserie.
Når du flytter ind hos The Union, tilbyder vi dig hjælp til din indretning, så du får et kontor, der passer til dine behov. Vi tilbyder også flytteservice på særligt favorable vilkår.
Vi tilbyder løbende nye services og tilbud, der understøtter en sund hverdag. Din virksomhed får desuden adgang til særligt attraktive pensions- og forsikringspakker og sundhedsanalyse fra PFA. Din virksomhed kan indgå i prispakker, som normalt kun hører de helt store virksomheder til.
Understøt dine medarbejderes work/life balance med attraktive værditilbud, der gør det nemmere at få hverdagen til at hænge sammen.
Fakta
| 1. sal | 396 m² | 26 pers. | Ledig |
| 1. sal | 350 m² | 23 pers. | Ledig |
| 2. sal | 396 m² | 26 pers. | Udlejet |
| 2. sal | 347 m² | 23 pers. | Udlejet |
| 2. sal | 332 m² | 22 pers. | Udlejet |
| 3. sal | 396 m² | 26 pers. | Udlejet |
| 3. sal | 350 m² | 23 pers. | Udlejet |
| 3. sal | 328 m² | 21 pers. | Udlejet |
| 4. sal | 396 m² | 26 pers. | Udlejet |
| 4. sal | 346 m² | 23 pers. | Udlejet |
| 4. sal | 332 m² | 22 pers. | Udlejet |
| 5. sal | 396 m² | 26 pers. | Udlejet |
| 5. sal | 309 m² | 20 pers. | Udlejet |
| Stuen | 479 m² | 31 pers. | Udlejet |
| Stuen | 207 m² | 13 pers. | Udlejet |
Vil du høre mere? Så skriv til kontakt@theunion.dk eller ring på 70605384
| 1. sal | 328 m² | 21 pers. | Udlejet |
Vil du høre mere? Så skriv til kontakt@theunion.dk eller ring på 70605384
Et indbydende ankomstområde tager godt imod dine gæster, som kan melde deres ankomst digitalt.
Adgang til fælles mødecenter med indbydende og funktionelle mødelokaler der alle er udstyret med high speed Wi-Fi og AV udstyr.
I vores brasserie byder vi hver dag på sund og frisklavet mad i en høj kvalitet.
Med lounge og touch down spaces opnås en bredere pallette af arbejdsrammer, som understøtter et mere dynamisk arbejdsliv og forbedrer arealeffektiviteten.
Undgå at bruge plads til store mødelokaler i eget lejemål. Anvend i stedet fællesområdet til større events og arrangementer.
Gør det nemt for dine medarbejdere at indpasse træning i hverdagen med attraktive bade- og omklædningsfaciliteter.
Stor parkeringsplads tæt på kontorhusets hovedindgang gør det nemt at finde en plads både til bilen og cyklen.
Vær uafhængig af arbejdstider med fri adgang til kontoret 24/7.
Flere fordele med
All Inclusive
Fuld fleksibilitet
• Flyt ind på mindre end en måned
• Fraflyt med kun 6 måneders varsel
• Skru op og ned for kvadratmeterne og servicen efter behov
Alt inkluderet i lejen
• Komplet møbleret lejemål
• Attraktive fællesfaciliteter og mødelokaler
• High speed internet (kablet og WiFi)
• El, vand, varme og drift
• Rengøring og vinduespolering
Markedets mest transparente aftale
• Simpel og letlæselig kontrakt på få sider
• Alt inkluderet i lejen – ingen uforudsete udgifter
• Fraflytningsforpligtelsen er fastlåst og kendt på forhånd
En lejekontrakt
som ingen andre
Vi vil gerne introducere dig for en helt ny måde at lave lejekontrakter på. En lejekontrakt som ikke kræver, at du sidder klar med en strategisk business plan for de næste 5 år. Du kan flytte ind på mindre end en måned, skalere op og ned efter behov samt få del i et væld af lækre faciliteter og ekstra services. Samtidig kan du fraflytte med kort varsel – alle udgifter er inkluderet og fraflytningsforpligtigelsen er fastlåst og kendt på forhånd..
Alle de kontrakttunge steps, som normalt spænder ben for din virksomheds fleksibilitet og vækst er fjernet til fordel for en mere simpel løsning, der dækker din virksomheds behov. Fra færdigindrettet lejemål til sund mad i kantinen. Der er tænkt på det hele. Det er derfor vi kalder lejekontrakten ’All Inclusive’.
Attraktiv beliggenhed i Odenses nye erhvervsområde
Cortex Park er en del af Campus Odense, der i disse år gennemgår en rivende udvikling, og som oplever en stigende tilstrømning af nye erhvervsvirksomheder. Området er et af Europas mest ambitiøse vækst- og udviklingsområder for forskning, uddannelse og erhverv.
I nærheden ligger Rosengårdscentret, Bilka, IKEA, OUH og Syddansk Universitet med mere end 25.000 studerende. Derudover har området gode forbindelser til Odense centrum via motorvej og letbane.
Fordele og services
Når din virksomhed flytter ind i et The Union kontorhus, får I adgang til værdiskabende fællesfaciliteter og attraktive medarbejdergoder. Her får I ikke bare adgang til fysiske rammer, hvor komfort hænger sammen med at være omkostningsbevist. I bliver også en del af et fuldt serviceret fællesskab, der giver både dine medarbejdere og gæster en hverdag med høj service og store smil.
Book din fremvisning nu
