Cortex Business Park
3. sal.
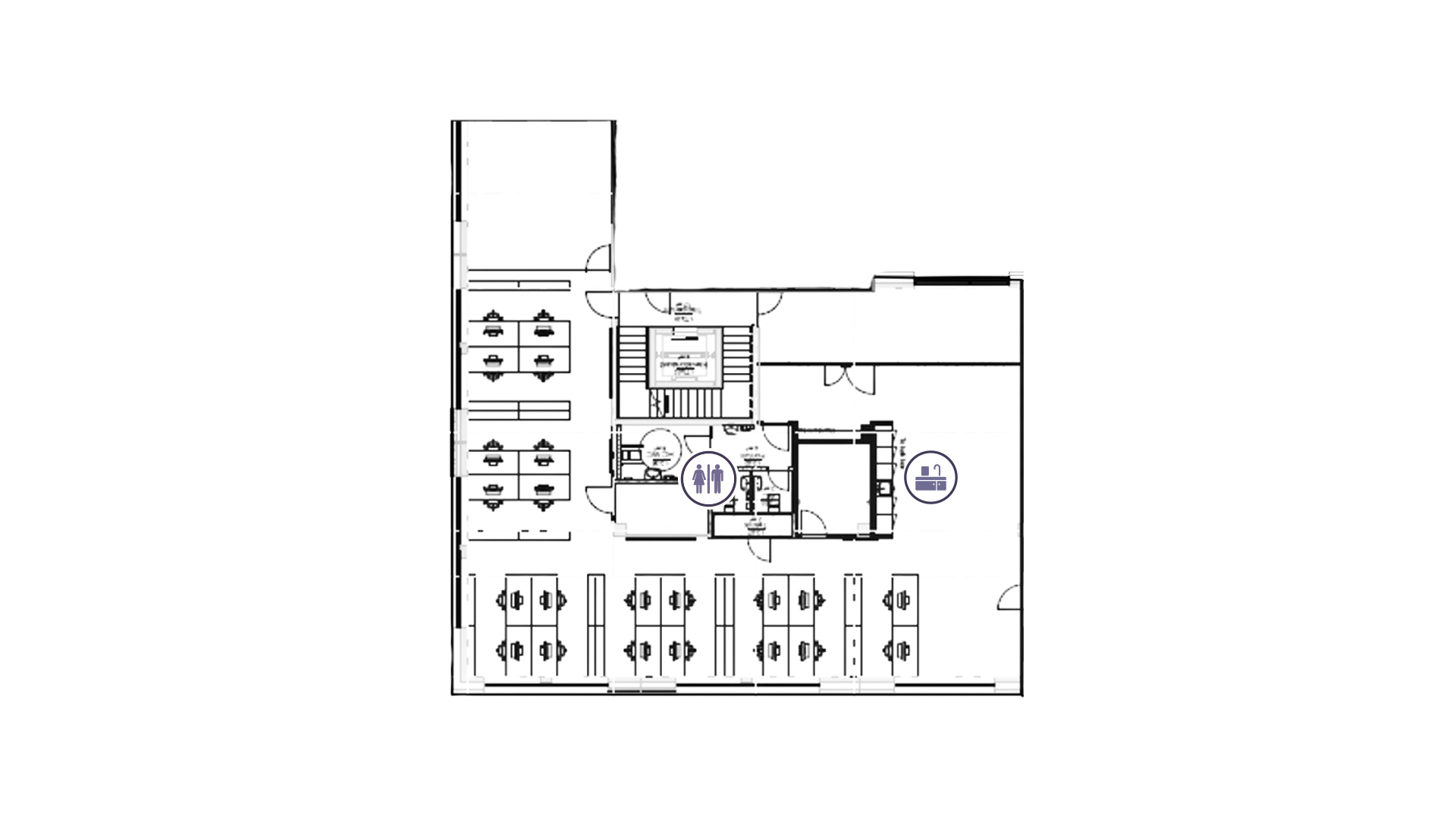
Kontorlejemål på 350 m² med plads til op til 23 personer
Om lejemålet
Fra et indbydende ankomstområde med fælles digital reception kan du tage trappen eller elevatoren op på kontorhusets 3. sal. Her finder du et lyst kontor med store vinduer, akustiklofter og lyse trægulve der tilsammen skaber god akustik og godt indeklima. Din virksomhed kan på dette lejemål tilgå eget tekøkken, toiletfacilliter og ekstra lokale til møder eller aflukket kontor.
Skal du have plads til bilen eller cyklen, er der gode parkeringsmuligheder foran ejendommen.
Lyder det som noget for dig? Vi glæder os til at viser lokalerne frem.
| Leje pr. md. (ex drift og forbrug) | 32.083 kr. |
| Aconto forbrug | 1.750 kr. |
| Aconto driftsudgifter | 11.929 kr. |
| Servicebidrag | 0 kr. |
| Leje pr. md. inkl. drift og forbrug | 45.763 kr. |
| Leje pr. år (ex drift og forbrug) | 385.000 kr. |
| Aconto forbrug | 21.000 kr. |
| Aconto driftsudgifter | 143.150 kr. |
| Servicebidrag | 0 kr. |
| Leje pr. år inkl. drift og forbrug | 549.150 kr. |
Der tages forbehold for prisændringer.
| Anvendelse | Kontor |
| Betaling | Kvartalsvis forud |
| Depositum | 6 måneders husleje |
| Lejeregulering | Nettoprisindeks dog min. 2% |
| Uopsigelighed | Efter nærmere aftale |
| Opsigelsesvarsel | 6 måneder |
| Overtagelsestidspunkt | Nu |
unikke fordele og services:
Spar værdifuld til på koordinering af alt fra rengøring, kantineordning til planteservice. Driften af kontorhuset er inkluderet i pakken. Vi tilbyder også ekstra services til eget lejemål.
I vores brasserie byder vi hver dag på sund og frisklavet mad i en høj kvalitet.
Adgang til kaffeautomat i fællesområde
Skal det være nemt? Så bestil take away til aftensmaden fra vores lækre Brasserie.
Når du flytter ind hos The Union, tilbyder vi dig hjælp til din indretning, så du får et kontor, der passer til dine behov. Vi tilbyder også flytteservice på særligt favorable vilkår.
Vi tilbyder løbende nye services og tilbud, der understøtter en sund hverdag. Din virksomhed får desuden adgang til særligt attraktive pensions- og forsikringspakker og sundhedsanalyse fra PFA. Din virksomhed kan indgå i prispakker, som normalt kun hører de helt store virksomheder til.
Understøt dine medarbejderes work/life balance med attraktive værditilbud, der gør det nemmere at få hverdagen til at hænge sammen.
Highlights fra kontorhuset
Et indbydende ankomstområde tager godt imod dine gæster, som kan melde deres ankomst digitalt.
Adgang til fælles mødecenter med indbydende og funktionelle mødelokaler der alle er udstyret med high speed Wi-Fi og AV udstyr.
I vores brasserie byder vi hver dag på sund og frisklavet mad i en høj kvalitet.
Med lounge og touch down spaces opnås en bredere pallette af arbejdsrammer, som understøtter et mere dynamisk arbejdsliv og forbedrer arealeffektiviteten.
Undgå at bruge plads til store mødelokaler i eget lejemål. Anvend i stedet fællesområdet til større events og arrangementer.
Gør det nemt for dine medarbejdere at indpasse træning i hverdagen med attraktive bade- og omklædningsfaciliteter.
Stor parkeringsplads tæt på kontorhusets hovedindgang gør det nemt at finde en plads både til bilen og cyklen.
Vær uafhængig af arbejdstider med fri adgang til kontoret 24/7.
Attraktiv beliggenhed i Odenses nye erhvervsområde
Cortex Park er en del af Campus Odense, der i disse år gennemgår en rivende udvikling, og som oplever en stigende tilstrømning af nye erhvervsvirksomheder. Området er et af Europas mest ambitiøse vækst- og udviklingsområder for forskning, uddannelse og erhverv.
I nærheden ligger Rosengårdscentret, Bilka, IKEA, OUH og Syddansk Universitet med mere end 25.000 studerende. Derudover har området gode forbindelser til Odense centrum via motorvej og letbane.
En del af The Union
The Union har servicerede kontorhuse på attraktive adresser i København, Aarhus og Odense. Med PFA i ryggen skaber vi sunde rammer for jeres virksomhed og medarbejdere.
Vi driver kontorhuse med omtanke, så det er nemt for jer at give både den økonomiske og menneskelige bundlinje et sundt løft. Hos os flytter I ind på fleksible lejevilkår og deler attraktive faciliteter, services (og regningen) med andre virksomheder.
