Engsøhus 3-5
Kontorlejemål på 611 m² med plads til op til 34 personer
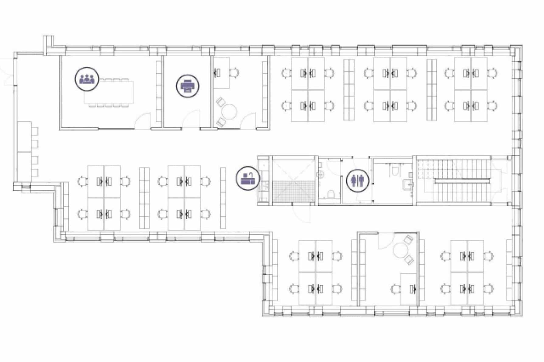
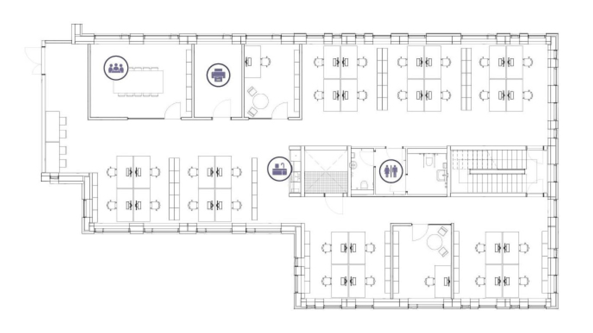
Om lejemålet
Fra et indbydende fælles ankomstområde kan du tage trapperne eller elevatoren op til 4. sal, hvor du kan opleve et stort lyst kontor med lækkert plankegulv, akustiklofter, hvidmalede vægge og store vinduer med udsigt over skoven og byen.
Lejemålet består at et storrumskontor, hvor der kan indrettes arbejdspladser, spisepladser eller longeområder. Kontoret er desuden udstyret med tekøkken og toiletfaciliteter. Skal du have plads til bilen eller cyklen, er der gode parkeringsforhold lige udenfor kontoret.
Lyder det som noget for dig? Vi glæder og til at vise lokalerne frem.
| Leje pr. md. (ex drift og forbrug) | 49.163 kr. |
| Aconto forbrug | 3.976 kr. |
| Aconto driftsudgifter | 11.799 kr. |
| Servicebidrag | 2.779 kr. |
| Leje pr. md. inkl. drift og forbrug | 67.716 kr. |
| Leje pr. år (ex drift og forbrug) | 589.950 kr. |
| Aconto forbrug | 47.709 kr. |
| Aconto driftsudgifter | 141.588 kr. |
| Servicebidrag | 33.345 kr. |
| Leje pr. år inkl. drift og forbrug | 812.592 kr. |
Der tages forbehold for prisændringer.
| Anvendelse | Kontor |
| Betaling | Kvartalsvis forud |
| Depositum | 6 måneders husleje |
| Lejeregulering | Nettoprisindeks dog min. 2% |
| Uopsigelighed | Efter nærmere aftale |
| Opsigelsesvarsel | 6 måneder |
| Overtagelsestidspunkt | Nu |
unikke fordele og services:
Spar værdifuld til på koordinering af alt fra rengøring, kantineordning til planteservice. Driften af kontorhuset er inkluderet i pakken. Vi tilbyder også ekstra services til eget lejemål.
I vores brasserie byder vi hver dag på sund og frisklavet mad i en høj kvalitet.
Adgang til kaffeautomat i fællesområde
Skal det være nemt? Så bestil take away til aftensmaden fra vores lækre Brasserie.
Når du flytter ind hos The Union, tilbyder vi dig hjælp til din indretning, så du får et kontor, der passer til dine behov. Vi tilbyder også flytteservice på særligt favorable vilkår.
Understøt dine medarbejderes work/life balance med attraktive værditilbud, der gør det nemmere at få hverdagen til at hænge sammen.
Fakta
| 1. sal | 520 m² | 34 pers. | Udlejet |
| 1. sal | 671 m² | 44 pers. | Udlejet |
| 1. sal | 699 m² | 46 pers. | Udlejet |
| 1. sal | 697 m² | 44 pers. | Udlejet |
| 1. sal | 694 m² | 46 pers. | Udlejet |
| 1. sal | 480 m² | 25 pers. | Udlejet |
| 2. sal | 699 m² | 34 pers. | Udlejet |
| 2. sal | 671 m² | 44 pers. | Udlejet |
| 2. sal | 520 m² | 20 pers. | Udlejet |
| 2. sal | 480 m² | 31 pers. | Udlejet |
| 2. sal | 697 m² | 46 pers. | Ledig |
| 2. sal | 694 m² | 46 pers. | Ledig |
| 3. sal | 520 m² | 34 pers. | Udlejet |
| 3. sal | 481 m² | 32 pers. | Ledig |
| 3. sal | 699 m² | 46 pers. | Udlejet |
| 3. sal | 480 m² | 31 pers. | Udlejet |
| 3. sal | 697 m² | 46 pers. | Udlejet |
| 3. sal | 507 m² | 33 pers. | Udlejet |
| 4. sal | 413 m² | 34 pers. | Udlejet |
| 4. sal | 514 m² | 34 pers. | Ledig |
| 4. sal | 211 m² | 14 pers. | Udlejet |
| 4. sal | 693 m² | 46 pers. | Udlejet |
| 5. sal | 424 m² | 28 pers. | Udlejet |
| 5. sal | 424 m² | 27 pers. | Udlejet |
| Stuen | 681 m² | 43 pers. | Udlejet |
| Stuen | 506 m² | 33 pers. | Ledig |
Vil du høre mere? Så skriv til kontakt@theunion.dk eller ring på 70605384
Et indbydende ankomstområde tager godt imod dine gæster, som kan melde deres ankomst digitalt.
Adgang til fælles mødecenter med indbydende og funktionelle mødelokaler der alle er udstyret med high speed Wi-Fi og AV udstyr
I vores brasserie byder vi hver dag på sund og frisklavet mad i en høj kvalitet.
Med lounge og touch down spaces opnås en bredere pallette af arbejdsrammer, som understøtter et mere dynamisk arbejdsliv og forbedrer arealeffektiviteten.
Effektiviser pladsen i eget lejemål og anvend fællesområdet til større events og arrangementer.
Gør det nemt for dine medarbejdere at indpasse træning i hverdagen med attraktive bade- og omklædningsfaciliteter
Stor parkeringsplads tæt på kontorhusets hovedindgang gør det nemt at finde en plads både til bilen og cyklen.
Oplad bilen mens du er på arbejde og hav altid bilen fyldt med ny energi
Tag en pause fra dagens opgaver eller afhold det uformelle møde i grønne omgivelser.
Vær uafhængig af arbejdstider med adgang til kontoret 24/7
Flere fordele med
All Inclusive
Fuld fleksibilitet
• Flyt ind på mindre end en måned
• Fraflyt med kun 6 måneders varsel
• Skru op og ned for kvadratmeterne og servicen efter behov
Alt inkluderet i lejen
• Komplet møbleret lejemål
• Attraktive fællesfaciliteter og mødelokaler
• High speed internet (kablet og WiFi)
• El, vand, varme og drift
• Rengøring og vinduespolering
Markedets mest transparente aftale
• Simpel og letlæselig kontrakt på få sider
• Alt inkluderet i lejen – ingen uforudsete udgifter
• Fraflytningsforpligtelsen er fastlåst og kendt på forhånd
En lejekontrakt
som ingen andre
Vi vil gerne introducere dig for en helt ny måde at lave lejekontrakter på. En lejekontrakt som ikke kræver, at du sidder klar med en strategisk business plan for de næste 5 år. Du kan flytte ind på mindre end en måned, skalere op og ned efter behov samt få del i et væld af lækre faciliteter og ekstra services. Samtidig kan du fraflytte med kort varsel – alle udgifter er inkluderet og fraflytningsforpligtigelsen er fastlåst og kendt på forhånd..
Alle de kontrakttunge steps, som normalt spænder ben for din virksomheds fleksibilitet og vækst er fjernet til fordel for en mere simpel løsning, der dækker din virksomheds behov. Fra færdigindrettet lejemål til sund mad i kantinen. Der er tænkt på det hele. Det er derfor vi kalder lejekontrakten ’All Inclusive’.
Naturskøn beliggenhed med perfekte transportmuligheder
Engsøhus ligger lige ud til det smukke naturområde ved Egå Engsø, men kun 7 km fra Aarhus centrum. Du kan hurtigt nå byen med bil eller letbanen, som stopper få minutters gang fra Engsøhus. Bybusserne har også stop tæt på. Samtidig er du tæt på motoren, som hurtigt giver dig adgang til Danmarks største byer.
Engsøhus er en del af et attraktivt erhvervsområde nord for Aarhus. Her bliver din virksomhed omgivet af mange andre store og mellemstore virksomheder.
Fordele og services
Når din virksomhed flytter ind i et The Union kontorhus, får I adgang til værdiskabende fællesfaciliteter og attraktive medarbejdergoder. Her får I ikke bare adgang til fysiske rammer, hvor komfort hænger sammen med at være omkostningsbevist. I bliver også en del af et fuldt serviceret fællesskab, der giver både dine medarbejdere og gæster en hverdag med høj service og store smil.
Book din fremvisning nu
