The Union Vesterport
Kontor til 27 personer på 3. sal
Om lejemålet
Ejendommens stueetage er indrettet med en stor og lys reception samt mange velindrettede mødelokaler i forskellige størrelser. Her vil der yderligere blive indrettet en butikscafé og et hyggeligt loungeområde, som lejerne selvfølgelig frit kan benytte sig af. Derudover, så finder man også på denne etage køkkenfaciliteter samt en stor kantine.
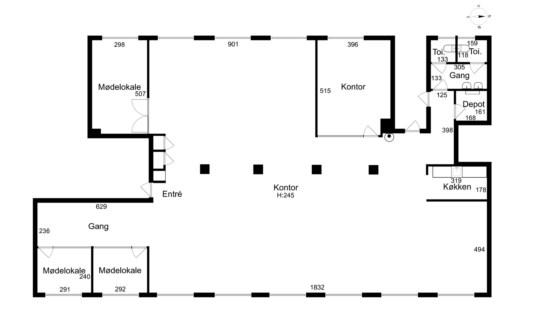
Fra ankomstområdet kan man tage trappen eller elevatoren op til ejendommens 3. sal. Her findes et storrumskontor med plads til 50 arbejdsstationer. Derudover, så er arbejdsområderne på dette lejemål præget af en masse dagslys fra de store vinduespartier med udvendig solafskærmning, der kan betjenes både manuelt og automatisk.
I hver ende af lejemålet findes der to toiletter samt flugttrappe og et centralt placeret tekøkken. Lejemålets grundplan gør det effektivt og fleksibelt at indrette sig i grupper til separate afdelinger eller projekter i virksomheden.
Etagen er ligeledes forberedt til en aktivitetsbaseret arbejdsplads, hvor de enkelte områder kan optimeres til forskellige arbejdsformer, ligesom der er mulighed for at etablere separate møde- og kontorrum.
| Leje pr. md. (ex drift og forbrug) | 63.495 kr. |
| Aconto forbrug | 3.137 kr. |
| Aconto driftsudgifter | 18.934 kr. |
| Servicebidrag | 0 kr. |
| Leje pr. md. inkl. drift og forbrug | 85.565 kr. |
| Leje pr. år (ex drift og forbrug) | 761.940 kr. |
| Aconto forbrug | 37.638 kr. |
| Aconto driftsudgifter | 227.205 kr. |
| Servicebidrag | 0 kr. |
| Leje pr. år inkl. drift og forbrug | 1.026.783 kr. |
Der tages forbehold for prisændringer.
| Anvendelse | Kontor til 27 personer |
| Betaling | Kvartalsvis forud |
| Depositum | 6 måneders husleje |
| Lejeregulering | Nettoprisindeks dog min. 2% |
| Uopsigelighed | Efter nærmere aftale |
| Opsigelsesvarsel | 6 måneder |
| Overtagelsestidspunkt | Nu |
unikke fordele og services:
Spar værdifuld tid på koordinering af alt fra rengøring, kantineordning til planteservice. Driften af kontorhuset er inkluderet i pakken. Vi tilbyder også ekstra services til eget lejemål. I vores kontohotel er alle services inklusiv internet, drift og forbrug, print, kaffe/the, frugt magasiner/aviser samt Office Manager on site.
I vores brasserie byder vi hver dag på sund og frisklavet mad i en høj kvalitet.
I brasseriet er der adgang til café-lækker. I vores kontorhotel er der ligeledes adgang til den lækreste kaffe og derudover the og frisk frugt.
Når du flytter ind hos The Union, tilbyder vi dig hjælp til din indretning, så du får et kontor, der passer til dine behov. Vi tilbyder også flytteservice på særligt favorable vilkår.
Vi tilbyder løbende nye services og tilbud, der understøtter en sund hverdag. Din virksomhed får desuden adgang til særligt attraktive pensions- og forsikringspakker og sundhedsanalyse fra PFA. Din virksomhed kan indgå i prispakker, som normalt kun hører de helt store virksomheder til.
Understøt work/life-balance, når jeres medarbejdere kan få ordnet nogle af hverdagens gøremål, mens de er på arbejde.
Fakta
| 1. sal | 6 pers. | 28.000 kr./md. | Udlejet |
| 1. sal | 12 pers. | 60.000 kr./md. | Udlejet |
| 1. sal | 4 pers. | 25.000 kr./md. | Ledig |
| 1. sal | 8 pers. | 42.000 kr./md. | Udlejet |
| 1. sal | 6 pers. | 31.000 kr./md. | Udlejet |
| 1. sal | 6 pers. | 31.000 kr./md. | Udlejet |
| 1. sal | 3 pers. | 16.000 kr./md. | Udlejet |
| 1. sal | 6 pers. | 32.000 kr./md. | Udlejet |
| 2. sal | 6 pers. | 33.000 kr./md. | Ledig |
| 2. sal | 12 pers. | 60.000 kr./md. | Udlejet |
| 2. sal | 4 pers. | 25.000 kr./md. | Udlejet |
| 2. sal | 6 pers. | 31.000 kr./md. | Udlejet |
| 2. sal | 6 pers. | 33.000 kr./md. | Ledig |
| 2. sal | 3 pers. | 16.000 kr./md. | Udlejet |
| 2. sal | 6 pers. | 34.000 kr./md. | Udlejet |
| 2. sal | 3 pers. | 16.000 kr./md. | Udlejet |
| 2. sal | 3 pers. | 18.000 kr./md. | Udlejet |
| 2. sal | 3 pers. | 16.000 kr./md. | Udlejet |
Vil du høre mere? Så skriv til kontakt@theunion.dk eller ring på 70605384
Vil du høre mere? Så skriv til kontakt@theunion.dk eller ring på 70605384
Vil du høre mere? Så skriv til kontakt@theunion.dk eller ring på 70605384
Et indbydende ankomstområde tager godt imod dine gæster, som kan melde deres ankomst digitalt. I vores kontorhotel vil vores Office Manager også sørge for personlig service i øjenhøjde.
Adgang til fælles mødecenter med indbydende og funktionelle mødelokaler der alle er udstyret med Wi-Fi og AV udstyr.
Med lounge og touch down spaces opnås en bredere pallette af arbejdsrammer, som understøtter et mere dynamisk arbejdsliv og forbedrer arealeffektiviteten.
Effektiviser pladsen i eget lejemål og anvend fællesområdet til større events og arrangementer.
Gør det nemt for dine medarbejdere at indpasse træning i hverdagen med attraktive bade- og omklædningsfaciliteter.
Parkeringsplads tæt på kontorhusets hovedindgang gør det nemt at finde en plads både til bilen og cyklen.
Oplad bilen mens du er på arbejde og hav altid bilen fyldt med ny energi
Vær uafhængig af arbejdstider med fri adgang til kontoret 24/7.
Flere fordele med
All Inclusive
Fuld fleksibilitet
• Flyt ind på mindre end en måned
• Fraflyt med kun 6 måneders varsel
• Skru op og ned for kvadratmeterne og servicen efter behov
Alt inkluderet i lejen
• Komplet møbleret lejemål
• Attraktive fællesfaciliteter og mødelokaler
• High speed internet (kablet og WiFi)
• El, vand, varme og drift
• Rengøring og vinduespolering
Markedets mest transparente aftale
• Simpel og letlæselig kontrakt på få sider
• Alt inkluderet i lejen – ingen uforudsete udgifter
• Fraflytningsforpligtelsen er fastlåst og kendt på forhånd
En lejekontrakt
som ingen andre
Vi vil gerne introducere dig for en helt ny måde at lave lejekontrakter på. En lejekontrakt som ikke kræver, at du sidder klar med en strategisk business plan for de næste 5 år. Du kan flytte ind på mindre end en måned, skalere op og ned efter behov samt få del i et væld af lækre faciliteter og ekstra services. Samtidig kan du fraflytte med kort varsel – alle udgifter er inkluderet og fraflytningsforpligtigelsen er fastlåst og kendt på forhånd..
Alle de kontrakttunge steps, som normalt spænder ben for din virksomheds fleksibilitet og vækst er fjernet til fordel for en mere simpel løsning, der dækker din virksomheds behov. Fra færdigindrettet lejemål til sund mad i kantinen. Der er tænkt på det hele. Det er derfor vi kalder lejekontrakten ’All Inclusive’.
Mellem søernes grønne oase og Citys pulserende liv
Området omkring Vesterport, Rådhuspladsen og Hovedbanegården har i de senere år gennemgået en transformation anført af det spektakulære kontorkompleks, Området drager fordel af meget fin adgang til offentlig transport med Vesterport og Hovedbanegården som det centrale knudepunkt.
Med sin status som en klassisk lokation i det indre København huser området flere store advokatfirmaer, fagforeninger, brancheorganisationer samt finansielle institutioner. Derudover optager statslige og kommunale myndigheder en forholdsvis stor del af kontorlejemålene i området. I de senere år har Kødbyen og den nye Tivoli Food Hall tilført mere liv til området og har gjort det mere attraktivt.
Fordele og services
Når din virksomhed flytter ind i et The Union kontorhus, får I adgang til værdiskabende fællesfaciliteter og attraktive medarbejdergoder. Her får I ikke bare adgang til fysiske rammer, hvor komfort hænger sammen med at være omkostningsbevist. I bliver også en del af et fuldt serviceret fællesskab, der giver både dine medarbejdere og gæster en hverdag med høj service og store smil.
Book din fremvisning nu
