Nørgaardsvej 32
1. sal.
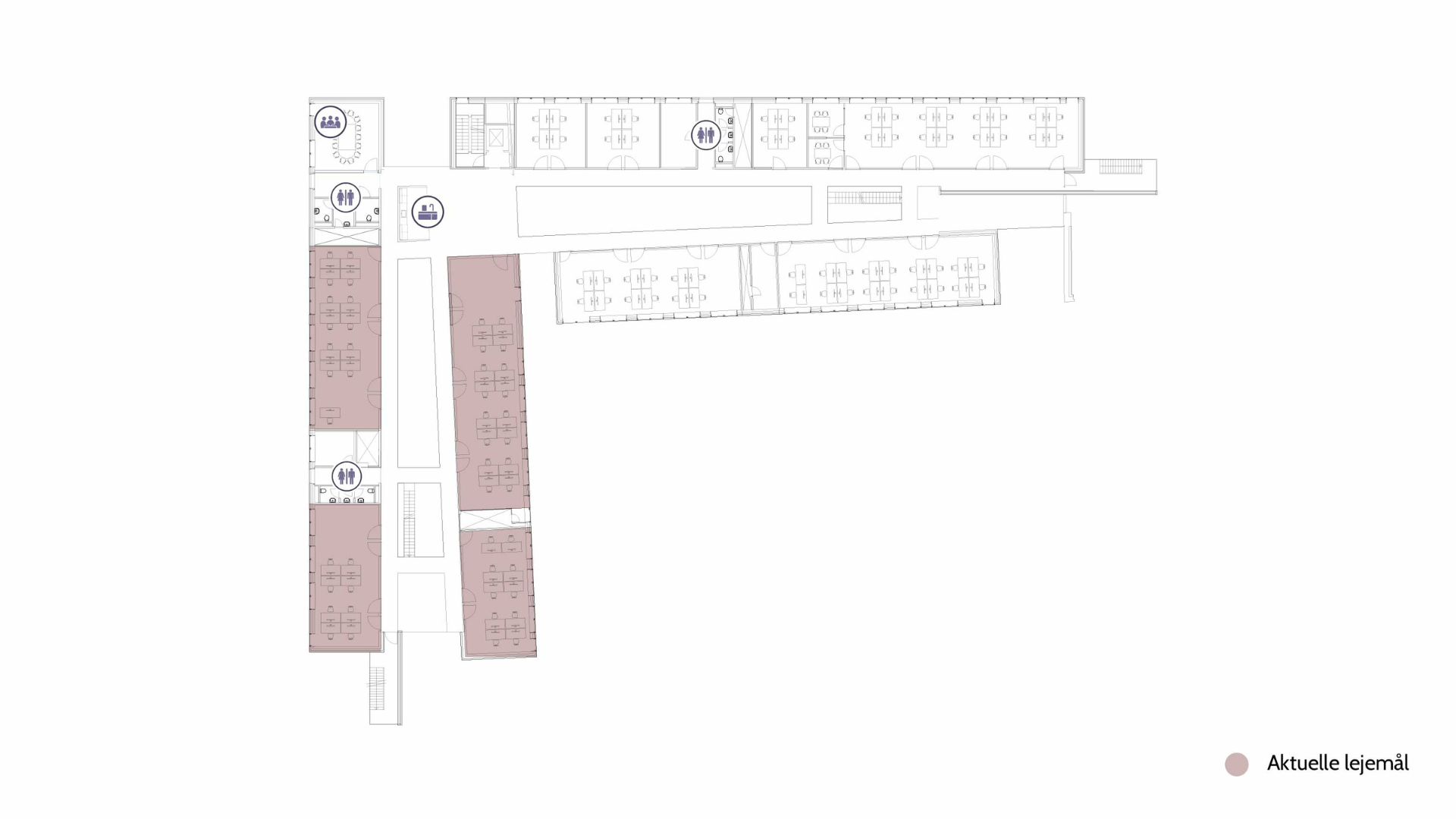
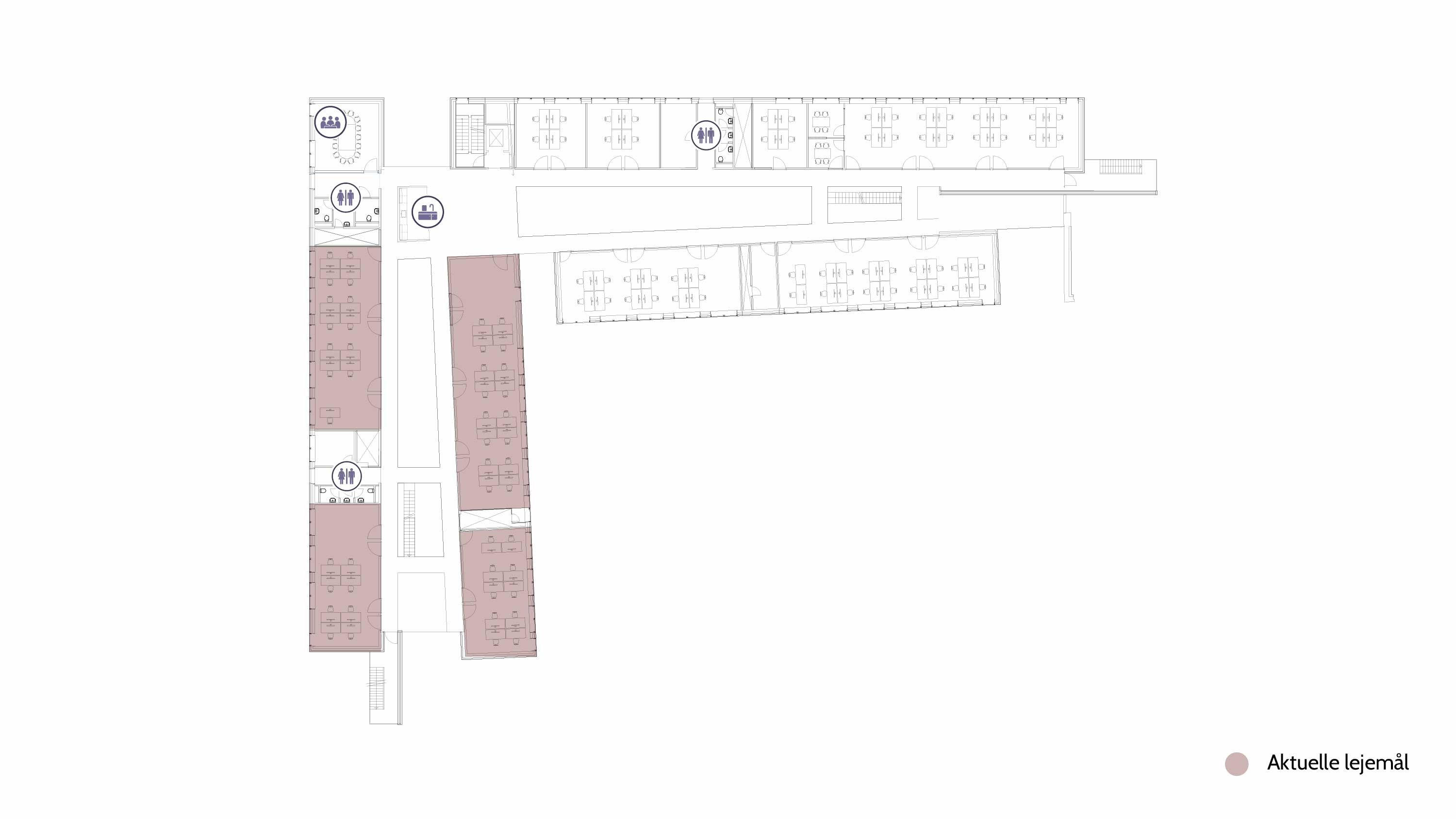
Halv etage på 1.400 m² med plads til ca. 78 arbejdsstationer (også muligt at leje hele etagen)
Om lejemålet
På første sal udbydes dette lejemål som med fordel kan slåes sammen med den anden halvdel af førstesalen, så jeres virksomhed får en hel etage. Her er ideelle rammer for en moderne arbejdsplads med mulighed for klassiske kontorarbejdspladser, projektzoner og attraktive fællesområder.
Ejendommen blev renoveret for få år siden og fremstår flot og præsentabel. Et gennemtænkt materialevalg understøtter et professionelt og stilrent udtryk med lyse trægulve, akustiklofter, ventilation og komfortkøl.
Lejemålene indeholder desuden tekøkken, toiletter og aflukkede mødelokaler.
Her bliver I en del af The Union Nørgaardsvej, hvor jeres virksomhed får en attraktiv base med høj tilgængelighed og gennemtænkte fællesfaciliteter – fra nem parkering til frokost tilberedt i ejendommens eget køkken.
Lyder det som noget for jer? Vi glæder os til at vise lejemålet frem til jer.
| Leje pr. md. (ex drift og forbrug) | 198.333 kr. |
| Aconto forbrug | 0 kr. |
| Aconto driftsudgifter | 44.917 kr. |
| Servicebidrag | 0 kr. |
| Leje pr. md. inkl. drift og forbrug | 243.250 kr. |
| Leje pr. år (ex drift og forbrug) | 2.380.000 kr. |
| Aconto forbrug | 0 kr. |
| Aconto driftsudgifter | 539.000 kr. |
| Servicebidrag | 0 kr. |
| Leje pr. år inkl. drift og forbrug | 2.919.000 kr. |
Der tages forbehold for prisændringer.
| Anvendelse | Kontor |
| Betaling | Kvartalsvis forud |
| Depositum | 6 måneders husleje |
| Lejeregulering | Nettoprisindeks dog min. 2,5% |
| Uopsigelighed | Efter nærmere aftale |
| Opsigelsesvarsel | 6 måneder |
| Overtagelsestidspunkt | 01-11-2026 |
unikke fordele og services:
Nyd de inspirerende rammer og sænk bare skuldrene. Alle fællesfaciliteter er fuldt servicerede. Vi faciliteter også gerne services til jeres eget kontor.
I vores brasserie byder husets køkken hver dag på sund og frisklavet mad i en høj kvalitet. Vi hjælper også gerne med mødeforplejning.
Som en del af The Union får I adgang til mødefaciliteter i vores andre kontorhuse i København Aarhus og Odense.
Vi hjælper jer med at dokumentere og minimere jeres klimaaftryk. Følg energiforbrug løbende og få udarbejdet et årligt CO₂-regnskab.
Kom godt (og nemt) på plads. Få favorable priser på flyttehjælp, gratis rådgivning om indretning og op til 45% rabat på nye møbler.
Highlights fra kontorhuset
Moderne mødelokaler i forskellige størrelser og alt det nødvendige udstyr.
Stor kantine hvor I nyde jeres frokost i flotte lokaler. Her er
det også muligt at afholde events og møder.
Hold dit næste event, konference eller workshop i et indbydende og funktionelt auditorium
Flere forskellige fælles arbejdsområder understøtter et
dynamisk arbejdsliv og forbedrer arealeffektiviteten.
Parkeringsplads tæt på kontorhusets hovedindgang gør det nemt at finde en plads både til bilen og cyklen.
Gør det nemt for jeres medarbejdere at indpasse motion i
hverdagen med badefaciliteter, lockers og tørreskabe.
Et kontorhus med omtanke
The Union Nørgaardsvej er indrettet med fælles kantine, mødecenter, to store auditorier og flere lækre fælles loungeområder. Ejendommen blev gennemgående renoveret for få år siden. Ombygningen har forbedret energimærket fra C til A, så den nu opfylder EU’s taksonomi for bæredygtighed og bidrager til miljømålet ’Modvirkning af klimaændringer’.
Et optimeret ventilationssystem kombineret med anvendelsen af sunde materialer sikrer et stabilt og sundt indeklima hele året. Derudover understøtter solceller på taget produktionen af grøn strøm og reducerer ejendommens samlede miljøpåvirkning.
En del af The Union
The Union har servicerede kontorhuse på attraktive adresser i København, Aarhus og Odense. Med PFA i ryggen skaber vi sunde rammer for jeres virksomhed og medarbejdere.
Vi driver kontorhuse med omtanke, så det er nemt for jer at give både den økonomiske og menneskelige bundlinje et sundt løft. Hos os flytter I ind på fleksible lejevilkår og deler attraktive faciliteter, services (og regningen) med andre virksomheder.
